特色
房屋特色:【地址】南昌市东湖区阳明路358号红璞公寓军转大楼(江西出版大厦往西直走100米)。
【特色】1F设有超大共享公区,配备健身房、阅读室、桌游区、网吧等设施设备,可免费使用,独享悠闲生活,乐享休闲时光。
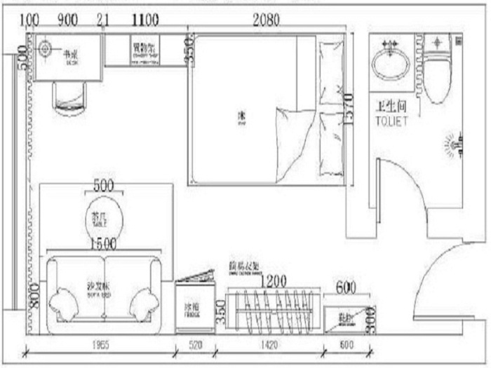
【户型】精装一房,蔚蓝天空为主题的设计风格,户型利用率高,房间宽敞明亮,简约中式风格,让生活充满色彩。
【配置】品牌家具家电齐全,配备整体卫浴,自行准备床单被褥可即可入住。
【费用】直租,无中介费用,可短租。
【服务】智能门锁、专属管家、定期保洁、24小时安保、集中管理,让你住的安全放心。
【配套】周边配套设施齐全,有菜市场、购物超市、步行街等,生活极为便利。
【交通】周边有多条公交线路可直达南昌各主城区,出行便利。距地铁2号线阳明公园站3号口仅600米,地铁出行,让你出行无忧。
公寓特色:1、集中式社区管理;
2、个性时尚的设计风格;
3、全新整套品牌家居;
4、全新质感公区体验;
5、老友记邻里文化;
6、专业管家服务。
户型配套
-
热水器
-
宽带
-
冰箱
-
空调
-
桌椅
-
衣柜
-
洗手间
-
电梯
-
床
-
沙发
红璞服务
-
专职管家
-
定期保洁
-
智能门锁
-
代收快递
-
高速WI-FI
-
移动支付保修
交通导航
导航:百度、腾讯地图:红璞公寓(南昌阳明路军转大厦店)
地铁:2号线阳明公园站
公交:2路、4路、7路、12路、17路、20路、22路、25路、28路、33路、38路、39路长班、52路、136路、139路、170路、209路、210路、230路、232路、240路、506路、K210路、K232路、BRT1路等
周边配套
-
餐饮
公寓下楼即美食街(早点、粉面、盖浇饭) 豫章后街美食街(邻舍、豫章猪手王、祥祥汤包店、柴米油盐等) 胜利路美食街(小龙坎火锅、绝味水煮、杨记花甲等) 肯德基、华莱士汉堡店等
-
娱乐
完美世界影城(胜利店)、迪卡乐连锁KTV(象山旗舰店)、呼啦啦自助KTV、提莫网咖等
-
购物
华润万家、大众购物中心、胜利步行街
-
其他
步行10分钟至滕王阁风景区及阳明公园、周边有众多银行(工商银行、招商银行、中国银行、江西银行、农业银行等)
精选户型

红璞APP
红璞微信